住宅アドバイザー
奥村 賢
view profile新築住宅




家に帰るのが、楽しみな人でいたい。
そのシンプルな気持ちから、この家の設計はスタートしました。
ロングアプローチを歩くたびに気持ちが切り替わり、
テラスでは季節の空気を家族と共有できて、
夜はリビングが映画館に変わる。
「暮らすこと」そのものが、特別な体験になる家です。


住宅アドバイザー
奥村 賢
洗練されたモダンな外観に、木目の温かいアクセント。
いい所どりの住まいで日々の生活を過ごせます。


営業部 主任
渡邉 隼人
LDKと繋がったテラススペースでは、
人目を気にしない季節ごとの家族の時間が流れます。


住宅アドバイザー
植村 拓人
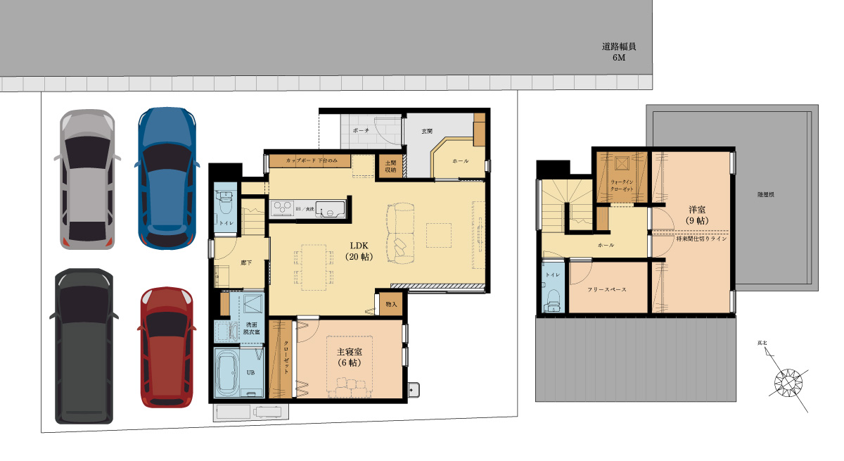
「ロングアプローチ⇒ポーチ⇒広々とした玄関」の帰宅動線が、
当たり前のただいまを、特別なただいまに変えてくれます。


設計部
河部 一輝
どこにいても自然と目線が合う家具配置にすることで、つながりを感じられる住まい。
何気ない会話が生まれる、家族にちょうどいい距離感を大切にしたLDKです。


コーディネーター
髙橋 美香
プロジェクター鑑賞を想定し、落ち着いた雰囲気で整えました。
カーペットタイルを採用し、足音や反響音にも配慮して安心できる場所に。

設計で大切にしたのは、「帰宅からくつろぎまでの流れ」でした。
ロングアプローチからポーチ、広々とした玄関へと続く帰宅動線は、
毎日の「ただいま」を、意識しなくても特別に感じさせてくれる仕掛けです。
LDKはどこにいても自然と目線が合う家具配置を意識し、
家族がそれぞれ好きな場所にいながら、気配がちゃんと届く距離感にしました。
テラスは人目を遮りながらLDKとつながる配置にすることで、
内と外の境界をゆるやかにし、季節ごとの暮らしを楽しめる空間に。
「この家にいると、なぜか豊かな気持ちになる」を
動線と空間構成で実現しています。

テーマは、「モダンと温かみを、どちらも本物にすること」でした。
洗練された外観に木目のアクセントを添えることで、
かっこよさと居心地のよさが自然と共存する佇まいに。
室内もクールなトーンで統一しながら、
木の素材をさりげなく取り入れることで、
長く暮らしても飽きのこない空間を意識しています。
プロジェクター鑑賞を想定したスペースには、
カーペットタイルを採用し、足音や反響音にも配慮。
映像と音に集中できる、落ち着いた雰囲気の場所に整えました。
日常の中に、ちょっと特別な時間が静かに宿っている。
そんな空間を、素材と色で丁寧に表現しています。
土地・建物/販売価格
3,980 万円(税込)
※ボーナス払い(年2回)約―円(※ボーナス分として600万円を設定)
※月々のお支払例は借入金額3,980万円、金利1.05%(トマト銀行・変動金利・諸条件有・保証料等別途)40年返済 ※お支払い一例です。諸条件によって若干異なります。


下記フォームに必要事項を入力後、送信ボタンを押してください。
※当日のご予約はお電話でお願いします。 ※毎週火・水曜日は定休日となります。
086-421-0025
定休日/火・水曜日(祝日の場合は営業)
営業時間/10:00~18:00