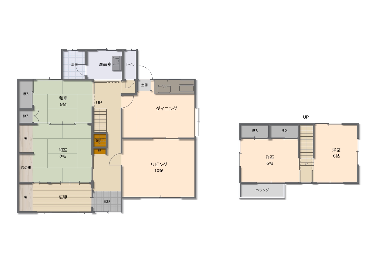
中古住宅

土地・建物/販売価格
980 万円(税込)

下記フォームに必要事項を入力後、送信ボタンを押してください。
※当日のご予約はお電話でお願いします。 ※毎週火・水曜日は定休日となります。
086-421-0025
定休日/火・水曜日(祝日の場合は営業)
営業時間/10:00~18:00